tender documentation

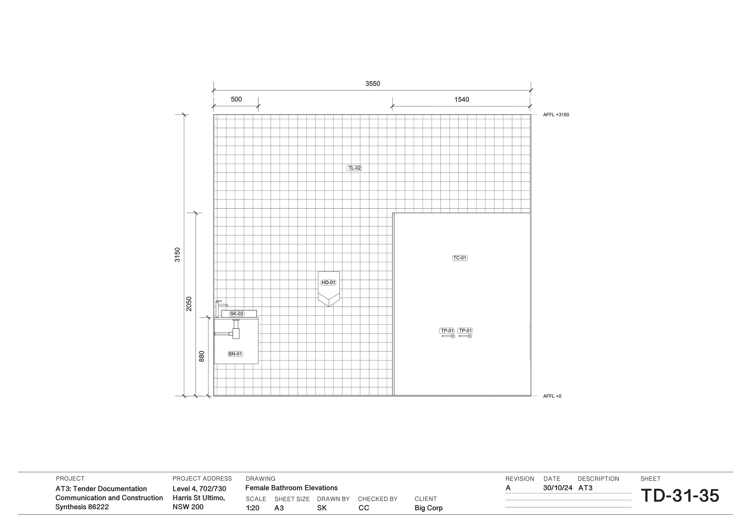
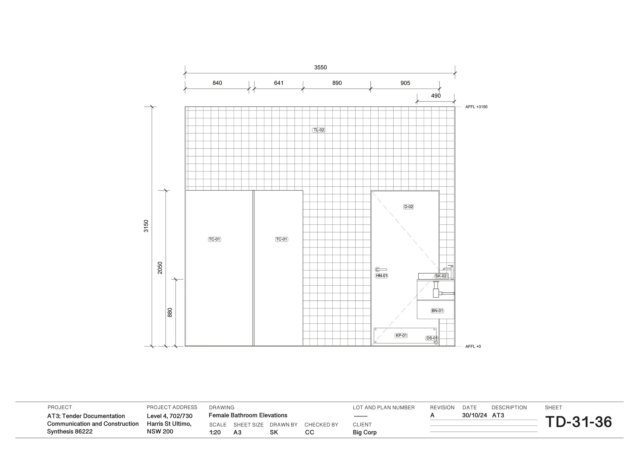
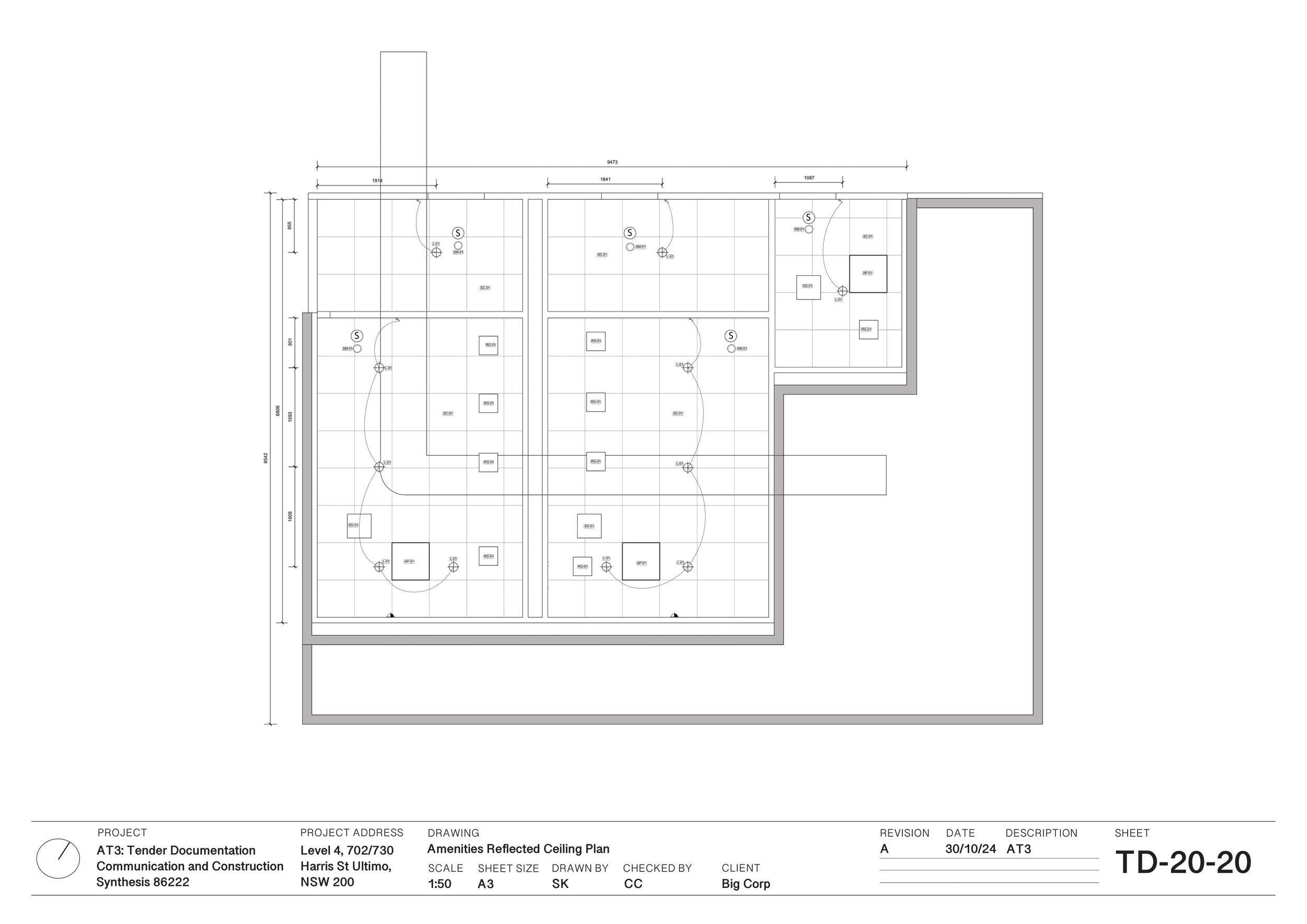
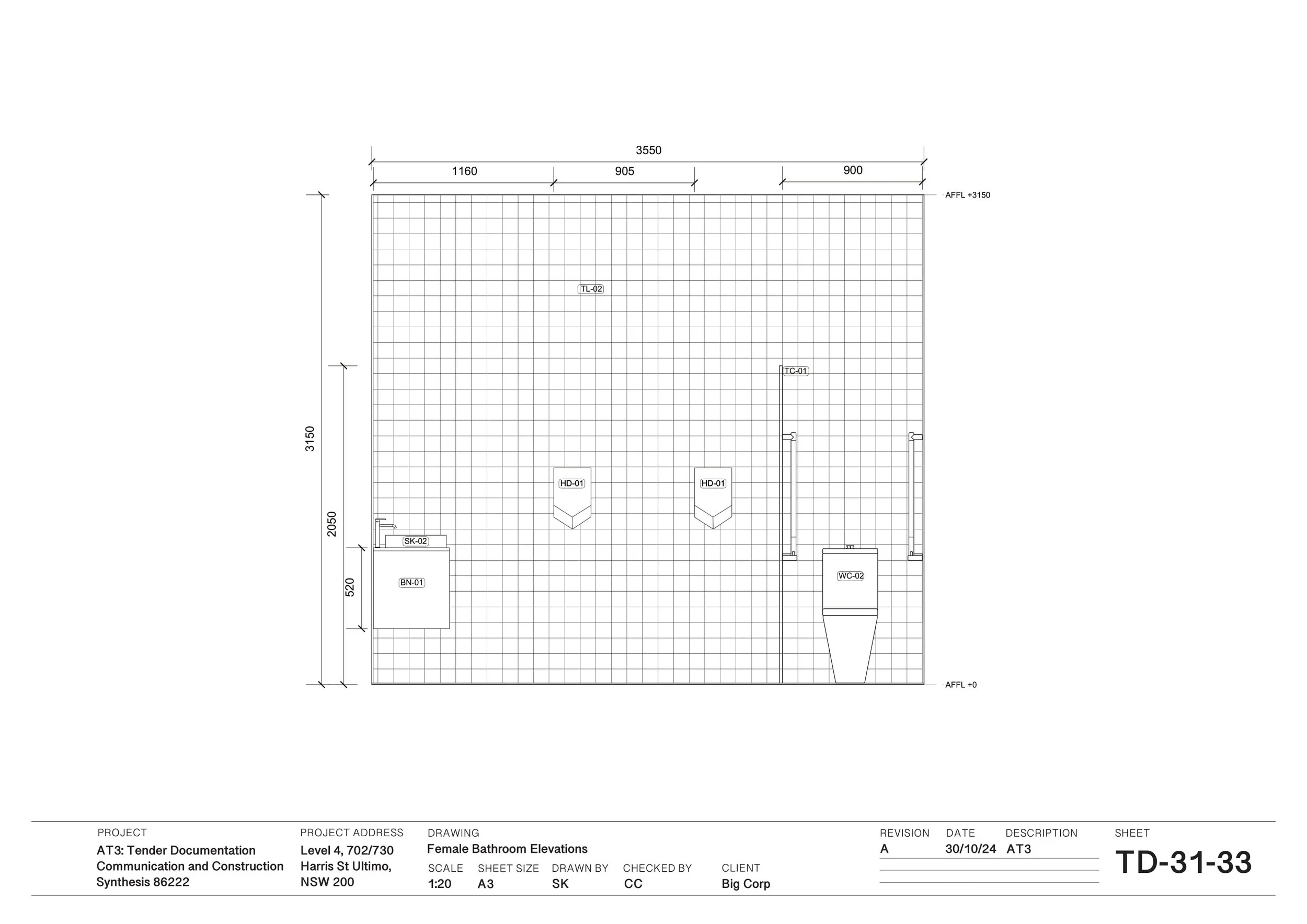
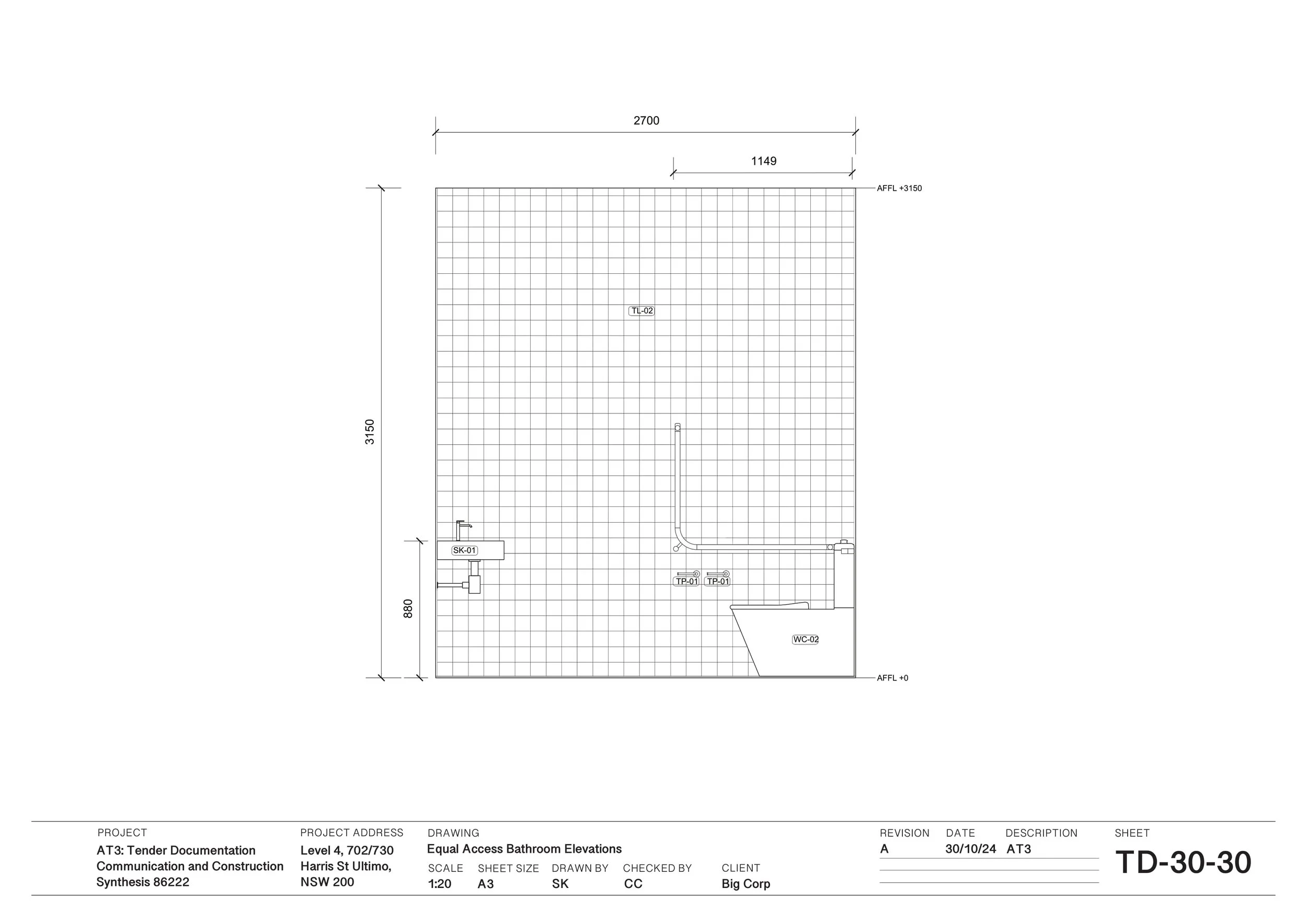
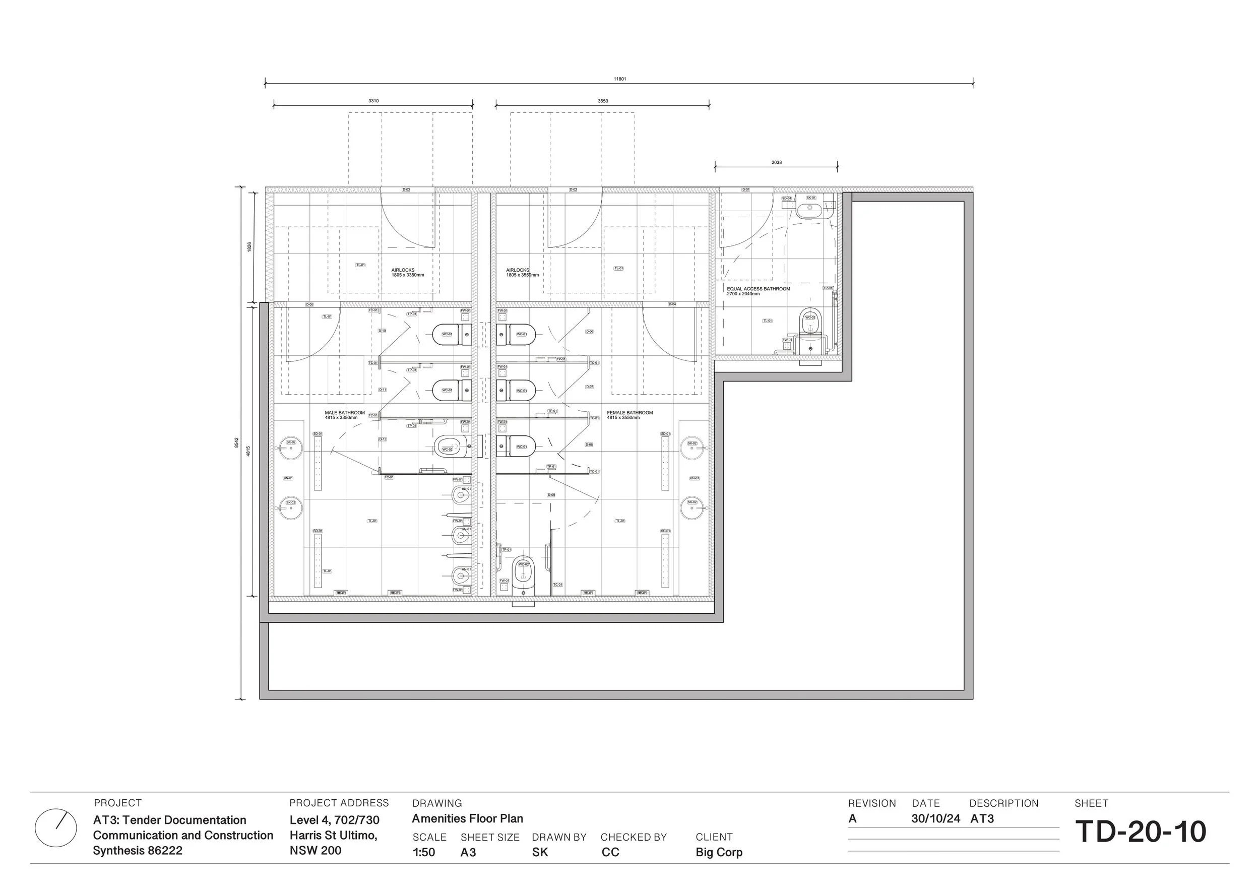
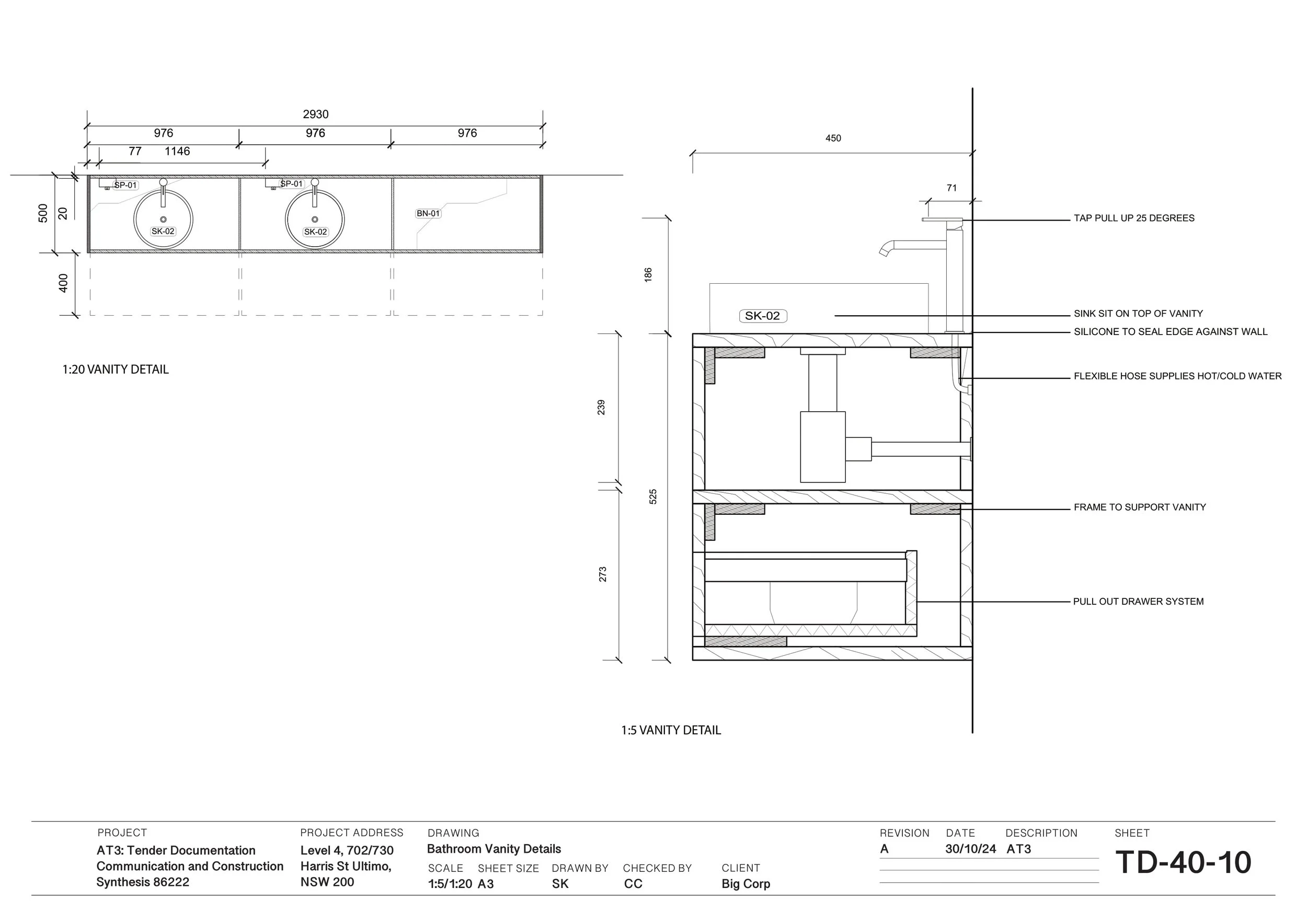
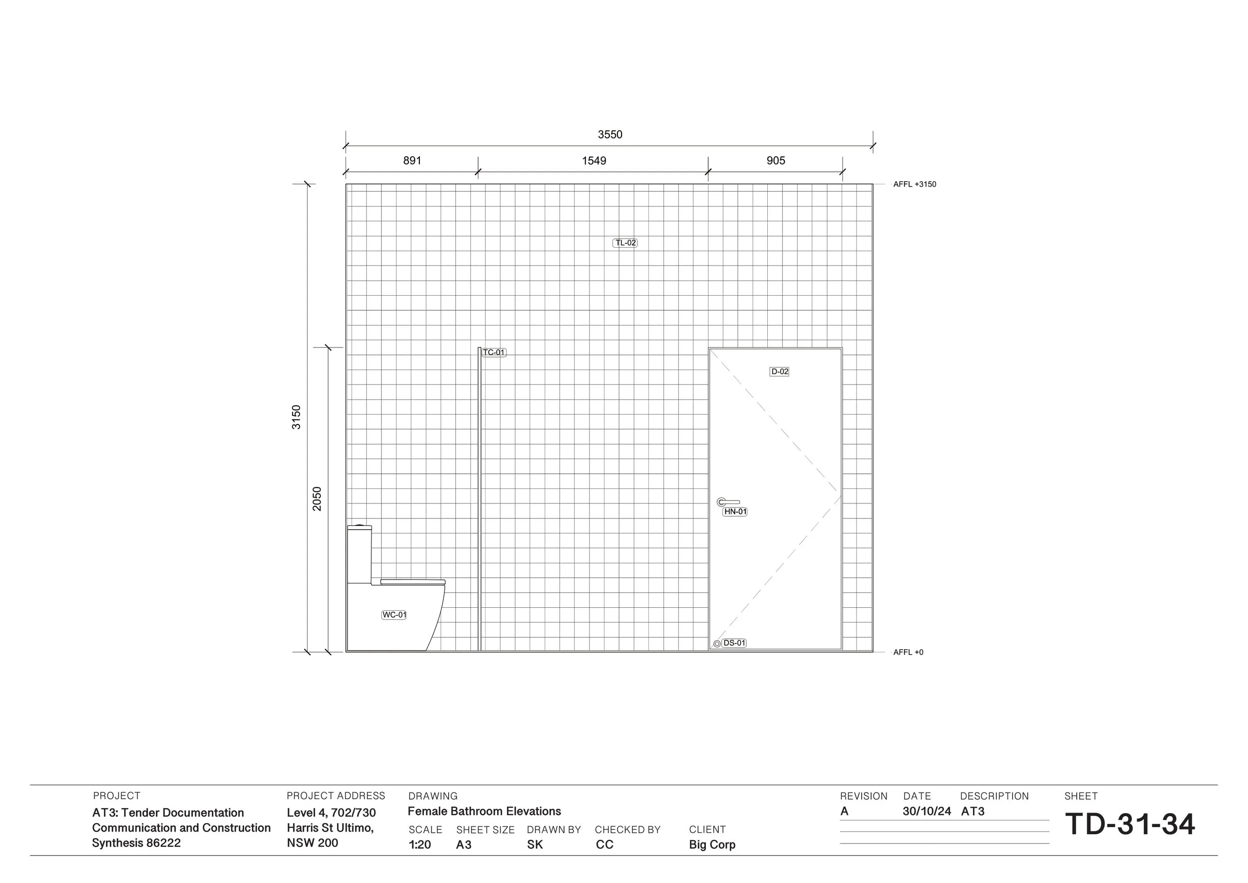
a detailed tender documentation of commercial office amenities within an existing workplace in Ultimo, Sydney, on Gadigal Country. the project translates a conceptual design reference into a fully compliant amenities fit-out, including male, female, and equal access bathrooms. the documentation aligns with the National Code of Construction and AS 1428.1, resolving layouts, finishes, lighting, and fixtures to an industry-standard level suitable for construction and tendering.

Previous
Previous

commercial office space

Next
Next

campervan design